|
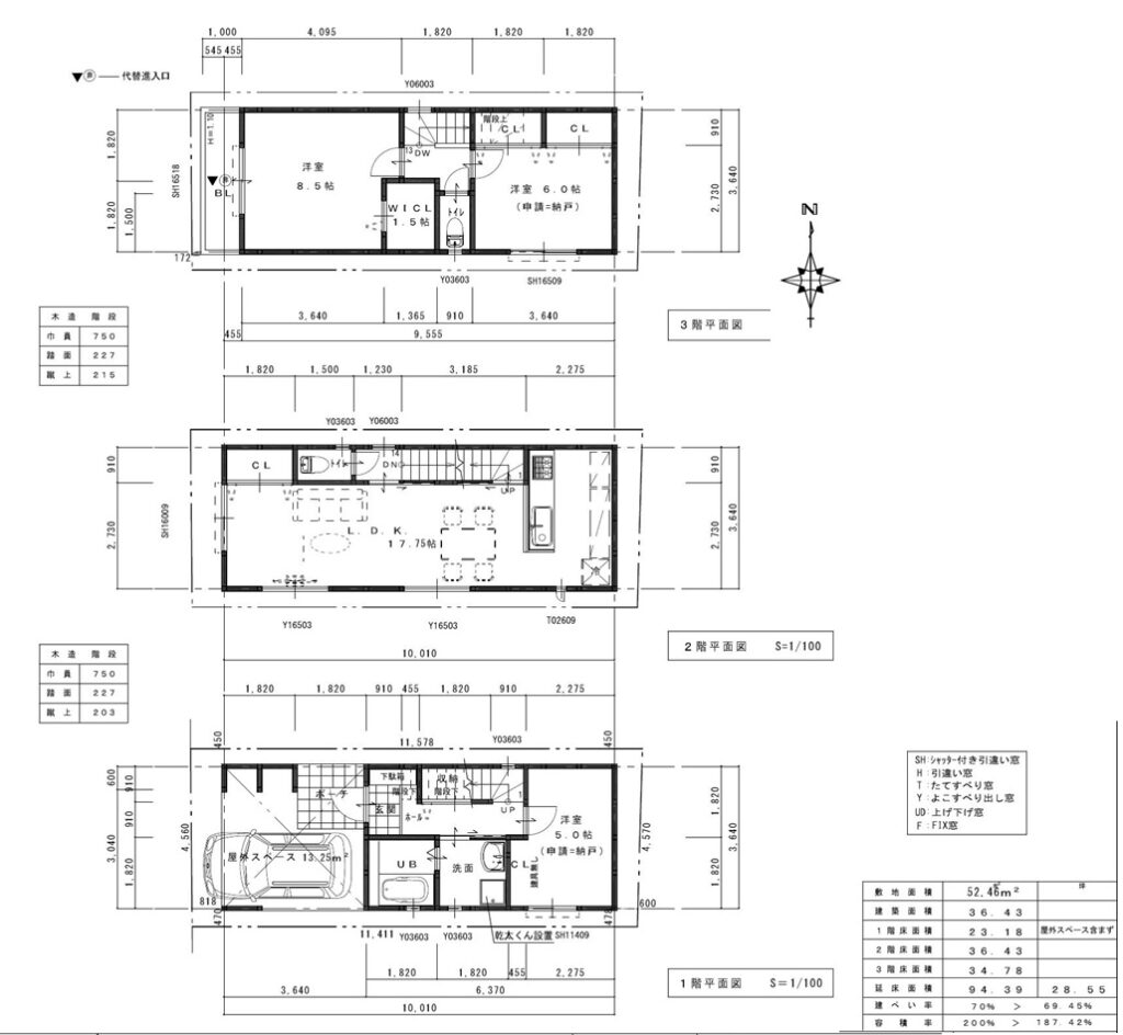
| 所在地 | 大阪府高槻市 高西町24番16号 【CLASSY高西町 新築戸建て】 |
| 交通 | 阪急京都本線 高槻市駅 徒歩20分 JR東海道・山陽本線 高槻駅 徒歩20分 |
| 築年月 | 2026/10 | 構造 | 木造 |
| 階建 | 地上 3階 | 部屋階数 | |
| 面積 | 94.39m² 土地 52.46m² | 建蔽率/容積率 | 60% / 200% |
| 物件番号 | |||
| 設備・条件 | 【売主直売】 乾太くん スマートキーシステム カウンターキッチン カップボード 温水洗浄便座2ヵ所 食器洗乾燥機 浄水器 シャンプードレッサー 浴室暖房乾燥機 TVドアホン ウォークインクローゼット フローリング 関西電力 都市ガス 公営水道 |
||
価格
面積


